Kikuchi + Kankel Design GroupKikuchi + Kankel Design GroupKikuchi + Kankel Design GroupKikuchi + Kankel Design Group
  • Services
  • Projects
    • Residential Design
    • Corporate/Commercial Design
    • Recreational Design
    • Institutional Design
  • About Us
  • News
  • Contact Us

Trinity Presbyterian Church

    Home Portfolio Trinity Presbyterian Church
    NextPrevious

    Trinity Presbyterian Church

    November 30, 2017
    0

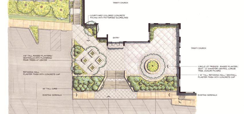
    Kikuchi Kankel Design Group has maintained an ongoing relationship with Trinity Presbyterian Church in San Carlos since 1996, commencing with landscaping to improve their visibility and “curb appeal.”

    A subsequent project completed in the summer of 2009 involved a new main sanctuary entry with an entry court for after-church gatherings and special events. Other pathways and parking lots were also improved to meet current disability access laws.

    Kikuchi Kankel Design Group, throughout our involvement with the Church, have been highly involved in moderating or participating in Building Committee workships and meetings.

    Category:
    Institutional Design
    Tags:
    Institutional

    admin

    More posts by admin

    Related Projects:

    Main Office: 730 Mill Street, Half Moon Bay, CA 94019 T: (650) 726-7100
    Branch Office: 61 East Main Street, Suite C, Los Gatos, CA 95030 T: (408) 356-5980
    © 2016 Kikuchi + Kankel Design Group. All rights reserved.
    • Services
    • Projects
      • Residential Design
      • Corporate/Commercial Design
      • Recreational Design
      • Institutional Design
    • About Us
    • News
    • Contact Us
    Kikuchi + Kankel Design Group